Earthship inspirée – premiers jets
Nous projettons de construire une maison inspirée des Earthships en Hongrie.
Les particularités:
- Hauteur sous plafond 5m (décliné sur la partie salon et cuisine en cathédrale et sur le reste en deux étages)
- Combinaison du traitement de l’eau grise par les plantes avec un étang de poisson en aquaponie.
- Construction du mur nord pas en pneu mais en briques de terre cru par souci d’espace et pour d’autres raisons …
- Toit végetalisée
Plan coupe – Side view
Façade vitrée droite, car en été l’inclinaison du soleil au zenith est de 66 dégrées et la partie plantée de la serre sera donc toujours ensoleillé.

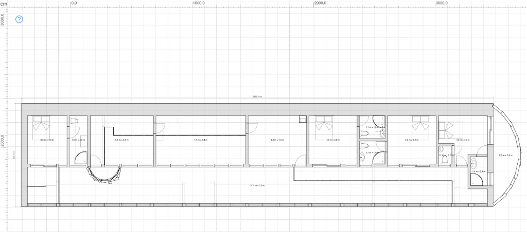
Rez de chaussée – Ground floor – Földszint
De gauche à droite, salle technique, chambre avec mezzanine, salon – salle à manger – cuisine sous mezzanine/buandérie, atélier créatif, chambre d’ami aved SDB, atélier/salle technique numéro 2.

Premier étage – First floor – Emelet #1
Une chambre d’hôte, la mezzanine de notre chambre, une mezzanine ‘bibliothèque’ qui surplombe le salon, la buandérie, trois autres chambres d’hôte – effectivement nous prevoyant accueillir notre famille plusieurs fois par an et peut-être des passionnées de maisons du style Earthship 🙂

Aperçu – Overview – Áttekintés

Système d’épuration d’eau grise combiné avec l’aquaponie – Greywater purification combined with an outdoor fish tank for aquaponia – Szürkevíz-tisztítás kombinálva egy kültéri halastóval az aquapónia számára
Based upon: https://earthshipbiotecture.com/systems/waste-water/
Système d’épuration de gauche à droite: décantation, premières plantes avec racines peu profondes, plantation principale ‘verger’, dernier bac arbres comme bananiers et prise d’eau pour les poissons et les chasses d’eau.
